山東天合環境科技有限公司
聯系人:李經理
聯系電話:13276363035
客服QQ:867220900
公司郵箱:867220900@qq.com
公司地址:山東省濰坊市高新區光電路155號光電產業加速器(一期)
一、智慧農業氣象站產品簡介
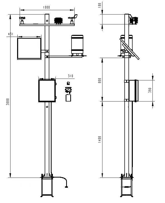
TH-NQ8農業氣象站是一款高度集成、低功耗、可快速安裝、便于野外監測使用的高精度氣象觀測設備。
該設備由氣象傳感器,采集器,太陽能供電系統,立桿支架,云平臺五部分組成。免調試,可快速布置,廣泛運用于氣象、農業、林業、科學考察等領域。
二、智慧農業氣象站產品特點
1.低功耗采集器:靜態功耗小于50uA
2.標配GPRS聯網、支持擴展藍牙、有線傳輸
3.七寸安卓觸屏,版本:4.4.2、四核Cortex?-A7,512M/4G
4.支持modbus485傳感器擴展
5.太陽能充電管理MPPT自動功率點跟蹤
6.三米碳鋼支架,兩節螺紋旋接
7.短信報警,超限后向指定的手機上發送短信
8.ABS材質防護箱,耐腐蝕、抗氧化,防水等級IP66
三、智慧農業氣象站技術參數
1.采集器供電接口:GX-12-3P插頭,輸入電壓5V,帶RS232輸出Json數據格式,采集器供電:DC5V±0.5V峰值電流1A,
2.傳感器modbus、485接口:GX-12-4P插頭,輸出供電電壓12V/1A,設備配置接口:GX-12-4P插頭,輸入電壓5V
3.太陽能供電、配置鉛酸電池,可選配30W 20AH/50W 20AH/100W 100AH.充電控制器:150W,MPPT自動功率點跟蹤,效率提高20%
4.數據上傳間隔:1分鐘-1000分鐘可調
5.屏幕尺寸:1024*600 RGB LCD
6.部分傳感器參數
名稱 | 測量范圍 | 分 辨 率 | 準 確 度 |
風速 | 0~30m/s | 0.01m/s | ±(0.1+0.03V)m/s |
風向 | 0~360°(16方向) | 1/16 | <3°(>1.0m/s) |
空氣溫度 | -40-80℃ | 0.1℃ | ±0.3℃(25℃) |
空氣濕度 | 0-100%RH | 0.10% | ±3%RH |
大氣壓力 | 30-110Kpa | 0.01Kpa | ±0.02Kpa(相對) |
雨量 | ≦4mm/min | 0.01mm | ±0.2mm |
土壤溫度 | -50~+80℃ | 0.1℃ | ≤±0.2℃ |
土壤濕度 | 0~100% | 0.1% | ±2% |
四、智慧農業氣象站云平臺
1.CS架構軟件平臺,支持手機、PC瀏覽器直接觀測、無需額外安裝軟件。
2.支持多帳號、多設備登錄
3.支持實時數據展示與歷史數據展示儀表板
4.云服務器、云數據存儲,穩定可靠,易于擴展,負載均衡。
5.支持短信報警及閾值設置
6.支持地圖顯示、查看設備信息。
7.支持數據曲線分析
8.支持數據導出表格形式
9.支持數據轉發,HJ-212協議,TCP轉發,http協議等。
10.支持數據后處理功能
11.支持外置運行javascript腳本
智慧農業氣象站產品結構圖
